【通話料無料】お気軽にどうぞ!
TEL:0120-473-480
東京都板橋区H様のカーポート施工例【フーゴF 2台用 柱奥行移動】
東京都板橋区にお住まいのH様から、ご意見・ご感想とカーポート完成後のお写真もいただきました。この度は、ご依頼いただき誠にありがとうございました。
カーポート施工例
カーポート完成写真

商品仕様
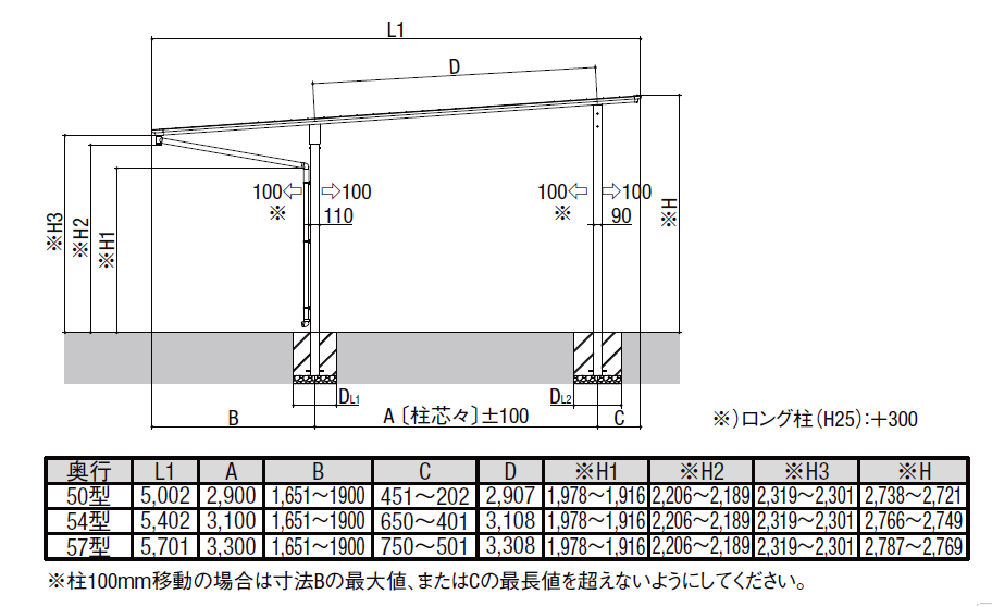
| 商品名 | フーゴF 2台用 柱奥行移動 |
|---|---|
| 仕様 | サイズ:W6,007㎜、L5,701㎜ 柱:ロング柱25(H=約2,500㎜) カラー:シャイングレー 屋根材:熱線吸収ポリカーボネート(クリアマットS) その他:サイドパネル2段(H800+800㎜) |
| 追加工事 | 奥行カット、サイドパネル取付、サイドパネル奥行カット、ハツリ工事 |
コウケンchを視聴しておりました
いただきましたアンケート
- 商品を知ってすぐに購入しましたか?しなかった場合、その理由は?
-
直ぐに購入
- 購入商品に期待していることは何ですか?
-
真夏の車内温度の軽減、真冬のフロントガラスの凍結防止
- 購入商品の好きな所、魅力を感じている所を教えてください。
-
奥柱の移動が出来て(オーバードアの柱がある為)しかも丈夫、そしてシンプルなところです
- コウケンネットで購入した決め手は何ですか?
-
リクシル専門店であり(設置済みのオーバードアがリクシルの為) 担当の古谷さんの対応も好感が持てました 不明な点もしっかり説明して頂き安心してお任せする事が出来ました
- コウケンネットの安心できた点と不安になった点を教えてください。
-
安心できた点はYouTubeのコウケンchを視聴しておりましたので安心感がありました<br>不安な点はネットショップは顔が見えない為、品質や施工が劣るのではないかと思いました
- 施工業者の安心できた点と不安になった点を教えてください。
-
施工業者の安心できた点は、人柄も良く豊富な経験や技術があり安心でした<br>不安な点は、施工者が1人だった為予定の3日間では終わらず4日間かかってしまいました
カーポート専門館スタッフより



カーポート専門館
YouTubeのコウケンchを見ていただけた事もきっかけで、弊社にお声掛けをいただき誠にありがとうございました。H様が必要とされていた柱移動が可能なカーポートが発売されておりましたので、オーバードアと同じメーカーのカーポートでお力になれてよかったです。施工後喜んでいただけて非常に嬉しいです。夏場や冬場の空間の変化が楽しみですね。施工士が1名でお伺いをしておりました点、ご心配をおかけして申し訳ございませんでした。元々息子さんと施工されておりましたが、先月から息子さんと別で1名で可能な工事を担当してくれております。今後、カーポートをお使いになられる中でお困り事等がございましたらお気軽にご連絡ください。この度は弊社でご注文をいただきまして、誠にありがとうございました。今後とも末永く、よろしくお願いいたします。
気になることがありましたら、お気軽にお問い合わせください^^
他のカーポート施工例を探す
同じフーゴF(2台用)で探す


神奈川県横須賀市I様のカーポート施工例【フーゴF 2台用 梁延長】
施工主が市内の人で安心した


兵庫県三田市S様のカーポート施工例【フーゴF 2台用】
リクシル専門であったことが最後の決め手


埼玉県戸田市K様のカーポート施工例【フーゴF 2台用 縦連棟(1+1台)】
経験と知識が豊富で細かいところ気軽に相談できた


神奈川県川崎市N様のカーポート施工例【フーゴF 2台用】
近所に実績があり安心出来た点が決め手
東京都でのカーポート施工例で探す


東京都日野市I様のカーポート施工例【ネスカF 1台用】
カーポートの色がよいと思います


東京都国分寺市N様のカーポート施工例【フーゴR 1台用】
ネット販売で少し不安があった


東京都U様のカーポート施工例【フーゴF 1台用】
細かい質問やお願い等にも丁寧・迅速にご対応いただけた


東京都K様のカーポート施工例【カーポートSW 1500 1台用】
施工後払いなので納得して支払うことができた
同じカラー(シャイングレー)で探す


神奈川県川崎市T様のカーポート施工例【ネスカF 2台用】
見積金額比較した結果、最安値であったこと


静岡県静岡市K様のカーポート施工例【ネスカR 1台用】
キャンピングカーへの対応について情報があった


岐阜県大垣市S様のカーポート施工例【カーポートSW1500 4台用】
希望のサイズに対応できつつ、最安値であったこと


大分県玖珠郡U様のカーポート施工例【フーゴA 1台用】
ホームページのカーポート施工例を見て決めた
カーポートのプロから解説
東京都板橋区H様の素敵なカーポートが完成しましたね。この事例をご覧になって、「ウチにもこういうカーポートが欲しいけれど、オーバードアや障害物があって無理かな…」「ネットの工事って、本当に大丈夫なんだろうか?」と、H様と同じようなことをお考えかもしれません。
私はコウケンNETカーポート専門館の池本と申します。業界経験約20年のプロとして、今回のH様の事例がいかに「カーポート選びのお手本」のようなケースだったか、そのポイントを解説させていただきます。
まず、H様が選ばれたLIXILの「フーゴF」。私もこの機能美を追求したシンプルなフラット(F)デザインは大好きです。そして何より、H様が魅力を感じてくださった『柱奥行移動』仕様が、まさに今回の鍵でした。
H様のお宅には、同じLIXIL製のオーバードアがすでに設置されていました。通常のカーポートでは柱が干渉して設置ができません。しかし、この『柱奥行移動』仕様(メーカーの規格では最大1900mmまで柱を奥に移動できます)があったからこそ、オーバードアの柱をスマートに避けて、あれほど美しく収めることができたのです。既存の設備とメーカーを揃えられたH様の選択は、大正解だったと言えますね。


次に、施工の「質」についてです。H様のアンケートには『ハツリ工事』や『奥行カット』といった追加工事が記載されています。これは、既存のコンクリートを(ハツリ)壊して柱のための頑丈な基礎を新設し、さらに敷地に合わせてカーポート本体やサイドパネルを現場で(カット)加工した、という証拠です。これらは非常に高い技術が要求される作業であり、むしろ「高品質なオーダーメイド工事」を行った証しでもあるのです。
H様は「施工者が1人だったため、予定の3日を超えて4日間かかった」点をご心配されていました。このお気持ち、痛いほど分かります。
しかし、これこそが私が最もお伝えしたい「品質の担保」なのです。先ほどご説明したような、柱を移動させ、コンクリートをハツリ、本体やパネルを現場でカットするという複雑な作業を、一人の熟練工が焦らず、妥協せず、4日間かけて完璧に仕上げた。スピードも大切ですが、これこそ、私たちが目指す「安全と品質が最優先」の姿勢です。3日で無理に終わらせることもできたかもしれませんが、私たちはそれを選びません。
屋根下の明るさと『真夏の車内温度の軽減』というH様の期待に応える「熱線吸収ポリカーボネート(クリアマットS)」の屋根(有害な紫外線をほぼ100%カットし、熱線も約36%カットする性能がメーカーから示されています)も、機能的な選択として素晴らしいですね。
H様は当初「ネットショップは顔が見えない為、不安だった」と正直に書いてくださいました。それでも、YouTubeのコウケンchや、担当の丁寧なご説明で信頼してくださったこと、そして何より、現場の職人の「妥協しない仕事」が、その不安を安心に変えることができたのだと自負しております。
カーポートは設置して終わりではありません。H様、ここからが本当のお付き合いの始まりです。何かあれば、いつでもお気軽にご連絡ください。
しつこい営業は一切しませんのでご安心ください。
2台用カーポートはこちらからすぐに金額チェックできます


カーポートSC 2台用 ワイド
2台分の空間を一枚の美しい屋根で覆う。住宅の顔となるファサードを、より一層モダンで洗練された印象に。


カーポートSC 2台用 縦連棟
奥行きのある敷地に最適な縦列2台用。連続する美しい屋根が、ファサードに新たな奥行きと風格を与えます。


カーポートSC 2台用 後方支持
柱が後方のみで視界を遮らない。圧倒的な開放感で、車の出し入れも乗り降りもスムーズな革新的2台用。


カーポートSC 2台用 片支持
柱を側面に集約する90度回転設置。敷地条件に合わせ、これまでにない自由なカースペース設計を可能に。


カーポートSC 2台用 ワイド 梁延長
柱の位置をずらしアプローチを広く確保。ゲートのような佇まいで、デザイン性と使いやすさを両立させます。


カーポートSC1500 2台用 ワイド
2台分の駐車スペースを、積雪50cmから守る。デザイン性と高い強度を両立した、積雪地域向けモデル。


カーポートSC1500 2台用 縦連棟
洗練されたデザインで積雪50cmに耐えられる強度。スタイリッシュに縦長の敷地に納まります。


カーポートSC3000 2台用 ワイド
2台の愛車を積雪100cmから守り抜く。豪雪地帯の住宅に、かつてない安心感と美しさをもたらします。


カーポートSC3000 2台用 縦連棟
豪雪地域+奥に長い敷地にぴったり。スタイリッシュなデザインでしっかり車を守ります。


ネスカF 2台用
2台分の駐車スペースをシャープに。住まいの顔となるモダンなワイドカーポート。


ネスカF 2台用 縦連棟
縦列駐車のスペースをモダンに演出。限られた敷地を最大限に活かす設計。


ネスカR 2台用 ワイド
家族の車を並べて優しくガード。安定感のあるラウンド屋根のワイドタイプ。


ネスカF 2台用 Y合掌
圧迫感のないスマートな2台用。乗り降りも駐車も楽になる美しいデザイン。


ネスカR 2台用 ワイド延長
2台の車とαの空間を確保。家族の成長に合わせられる余裕の収納力が魅力。


ネスカR 2台用 縦連棟
奥行きのある敷地に最適。2台の車を縦列でスマートに守る省スペース設計。


ネスカR 2台用 Y合掌
中央の柱で視界広々。車の出し入れがスムーズになる開放感あふれる空間。


フーゴF 2台用 ワイド
2台分の駐車スペースをシャープに演出。住まいの顔となるモダンなワイドカーポート。


フーゴR 2台用 ワイド
家族の車を並べて優しくガード。安定感のあるラウンド屋根のワイドタイプ。


フーゴA 2台用 ワイド
2台を優雅に包む大きなアーチ屋根。住宅の風格を決定づける存在感。


フーゴR袖壁 2台用 ワイド
2台の愛車を横からの雨風や視線から守る。プライバシーと安心感を両立 。


フーゴFプラス 2台用 ワイド
屋根枠に木目調アクセントをプラス。2台用スペースをより上質に演出する。


フーゴAプラス 2台用 ワイド
2台用アーチに上質なアクセントを。他と一線を画すこだわりのデザイン。


フーゴR900 2台用 ワイド
2台の愛車を積雪30cmから守る。より安心できる強度のワイドタイプ。


フーゴR1500 2台用 ワイド
2台の愛車を積雪50cmから守る。積雪地帯のファミリーに最高の安心を。


フーゴR袖壁1500 2台用 ワイド
2台の愛車を吹雪と積雪50cmから守る。積雪地帯の冬に究極の安心を。


フーゴR 2台用 ワイド延長
2台の車とαの空間を確保。家族の成長に合わせられる余裕の収納力が魅力。


フーゴAプラス 2台用 ワイド延長
上質なアーチの下に広がる余裕の空間。デザインも使い勝手も妥協しない。


フーゴR袖壁 2台用 ワイド延長
2台+αの空間を袖壁でしっかりガード。雨風を気にせず使える万能スペース。


フーゴR1500 2台用 ワイド延長
2台+αの空間を積雪50cmから守る。冬の暮らしに余裕が生まれる設計。


フーゴR袖壁1500 2台用 ワイド延長
2台+αの空間を吹雪と積雪50cmからガード。冬の作業スペースとしても活躍。


フーゴF 2台用 梁延長
柱をずらしてアプローチを広く確保。ゲートのような佇まいで利便性と美観を両立。


フーゴFプラス 2台用 梁延長
木目調の梁が美しいゲートを演出。アプローチと駐車スペースを優雅に繋ぐ。


フーゴF 2台用 柱奥行移動
柱を奥にずらして駐車しやすく。車の出し入れがスムーズになる革新的設計。


フーゴFプラス 2台用 柱奥行移動
上質なデザインはそのままに、柱を奥へ移動。美観と使いやすさを極めた一台。


フーゴF 2台用 Y合掌
中央柱で圧迫感のない2台用。乗り降りも駐車も楽になるモダンなデザイン。


フーゴR 2台用 Y合掌
中央の柱で視界すっきり。2台の車の出し入れがスムーズになる開放的な空間。


フーゴR1500 2台用 Y合掌
積雪50cm対応の開放的な2台用。駐車場の中央で仕切れる空間に。


フーゴF 2台用 縦連棟
縦列駐車スペースをモダンに演出。限られた敷地を最大限に活かす設計。


フーゴR 2台用 縦連棟
奥行きのある敷地にジャストフィット。2台の車を縦列で優しく守る設計。


フーゴA 2台用 縦連棟
連続するアーチが美しい奥行きを演出。縦列駐車を優雅な空間に変える。


フーゴR袖壁 2台用 縦連棟
縦列2台を袖壁でしっかりガード。奥行きのある敷地でプライバシーも確保。


フーゴF逆勾配 2台用 縦連棟
縦列2台を守り、住宅側への雨跳ねも軽減。奥行きある敷地の悩みを解決。


フーゴR両支持 1台用 縦連棟
縦列2台を両側から支える安心構造。奥行きのある敷地で最高の安定性を。


フーゴAプラス 2台用 縦連棟
縦に連なる上質な屋根枠が美しい。奥行きのあるファサードを格上げする。


フーゴF900 2台用 縦連棟
縦列2台を積雪30cmから守る。より安心でモダン住宅に調和するスマート設計。


フーゴR900 2台用 縦連棟
縦列2台を積雪30cmから守る。多少の雪が降る奥行きのある敷地に最適解。


フーゴR1500 2台用 縦連棟
縦列2台を積雪50cmから守る。積雪地帯の奥行きある敷地に究極の安心を。


フーゴR袖壁1500 2台用 縦連棟
縦列2台を吹雪と積雪50cmからガード。積雪地域の冬に万全の備えを。


カーポートSW900 2台用
大切な車2台を風速46m/sの暴風と積雪30cmから守る。家族のモビリティを守る、ワイドな安心感。


カーポートSW1500 2台用
家族の車2台を、風速46m/sの暴風と積雪50cmから守り抜く。あらゆる気象条件に屈しない、家族のための二重の要塞。


カーポートST3000 2台用
2台の車を1mの積雪の重圧から守る。朝のゆとりを生み出す、本格的雪国仕様のスタンダード。


カーポートST4500 2台用
2台の車を1.5mの積雪圧から守り抜く。豪雪地帯の日常に、揺るぎない自信をもたらす。


カーポートST6000 2台用
2台の車を2mの積雪という、想像を絶する重圧から守る。どんな豪雪にも屈しない、究極の安心領域。


カーポートSW900 2台用 奥行延長
車2台とその奥の可能性を、風速46m/sの暴風と積雪30cmから守る。駐車+収納で、敷地の価値を最大化する。


カーポートSW1500 2台用 奥行延長
車2台と冬の備えを、風速46m/sの暴風と積雪50cmから守る。除雪用具もタイヤも置ける、雪国仕様のユーティリティ。


カーポートST3000 2台用 奥行延長
車2台と除雪用具を、1mの積雪からまとめて守る。冬の必需品をスマートに格納する、賢い選択。


カーポートST4500 2台用 奥行延長
車2台と十分な物置スペースを、1.5mの豪雪から守る。冬の暮らしを豊かにする、多目的ストックスペース。


カーポートST6000 2台用 奥行延長
車2台と災害備蓄品を、2mの積雪から守る。あらゆる不測の事態に備える、最強の多目的シェルター。


カーポートSW900 2台用 間口延長
車2台と家族の乗り降りを、日々のストレスから守る。毎日の使い勝手を考え抜いた、優雅な選択


カーポートSW1500 2台用 間口延長
車2台と、厳しい天候下での乗り降りのゆとりを守る。風雪の中でも焦らない、ワンランク上の快適性能。


カーポートST3000 2台用 間口延長
車2台と、乗り降りの快適性を守る。雪国の日常を考え抜いた、ストレスフリー設計。


カーポートST4500 2台用 間口延長
2台の車と、極寒の中での作業効率を守る。メンテナンスさえも快適にする、プロ仕様の空間設計。


カーポートST6000 2台用 間口延長
2台の車と、極限状況下での機能性を守る。小型除雪機も格納できる、プロフェッショナルのための選択。


カーポートSW900 2台用 縦連棟
縦列2台を風速46m/sの暴風と積雪30cmから守る。限られた間口に、最大の機能美をインストール。


カーポートSW1500 2台用 縦連棟
縦列2台を、風速46m/sの暴風と積雪50cmから守る。限られた敷地で実現する、全天候型のパーフェクトな保護


カーポートST3000 2台用 縦連棟
縦列2台を1mの積雪から守る。限られた敷地を最大限に活かす、雪国のためのインテリジェントデザイン。


カーポートST4500 2台用 縦連棟
縦列2台を1.5mの豪雪から守る。除雪面積を最小限に抑える、豪雪地の戦略的ソリューション。


カーポートST6000 2台用 縦連棟
縦列2台を2mの積雪から守る。日本で最も雪深い地域のための、LIXIL技術の頂点。